Вход
Восстановление пароля
Введите код из SMS
Введите новый пароль
8 (812) 777-27-27

Добавить лот

Чтобы реализовать свою недвижимость на площадке Фонда Имущества, отправьте нам информацию об объекте:

{{smsCtrl.telMsg}}
{{smsCtrl.codeMsg}}
Отправить еще раз
Добавляя лот, вы соглашаетесь с Договором оферты

Авторизация
Авторизируйтесь для добавления объекта и участия в рейтинге

Зарегистрироваться

Оцените по достоинству личный кабинет на сайте Фонда Имущества
Вы можете зарегистрироваться
чтобы воспользоваться новым функционалом
О сайте

Название: сетевое издание «фондимущества.рф»

Учредитель: АО «Фонд Имущества Санкт-Петербурга»

Главный редактор: Голыгина А.В.

Электронная почта: pochta@property-fund.ru

Телефон: +7 (812) 426-11-11

Свидетельство о регистрации: ЭЛ № ФС 77 - 73029

Номер лота 3467
Нежилое помещение в аренду для субъектов малого и среднего предпринимательства в Санкт-Петербурге Извещение о проведении торгов
06 мая
2026
12:00
среда

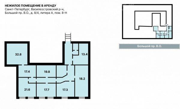
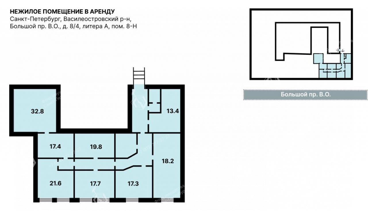
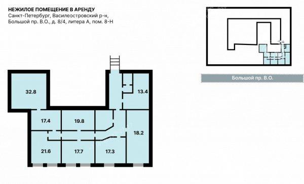
Адрес: Санкт-Петербург г, Большой В.О. пр-кт, дом 8/4, литер А

Район: Василеостровский    Василеостровская

Форма проведения:
Аукцион с открытой формой подачи предложений

Место проведения торгов:
Универсальная торговая платформа АО «Сбербанк-АСТ» (торговая секция «Приватизация, аренда и продажа прав») - utp.sberbank-ast.ru

Организатор торгов:
АО «Фонд имущества Санкт-Петербурга»

Сведения о процедуре
Начальная цена 858 599,73 руб.
Размер задатка 858 599,73 руб.
Шаг аукциона 42 929,99 руб.
Определение участников торгов 06.05.2026
Дата публикации 03.04.26
Тип сделки Аренда
Тип торгов Электронные
Дата начала приема заявок 04.04.26, 16:00
Дата окончания приема заявок 04.05.26, 10:00
Срок поступления задатка 04.05.26
Дата торгов 06.05.26
Сведения об объекте
Адрес Санкт-Петербург г, Большой В.О. пр-кт, дом 8/4, литер А
Помещение 8-Н
Кадастровый номер 78:06:0002020:184
Функциональное назначение Склад
Площадь кв. м 207,7 м2
Этаж расположения подвал
Тип входа 1 общий со двора
Элементы благоустройства Есть
Примечания

НАЧАЛЬНАЯ ЦЕНА (ВЕЛИЧИНА ГОДОВОЙ АРЕНДНОЙ ПЛАТЫ) СНИЖЕНА НА 25%. Обременения: см. извещение о проведении торгов. Объект расположен в здании, являющемся объектом культурного наследия регионального значения «Дом Юнкера А.Ф.». Обязанность арендатора по присоединению Объекта к электросетям. Самовольная перепланировка/переустройство. Лицо, с которым должен быть заключен договор аренды, обязано выплатить специализированной организации вознаграждение в размере месячной арендной платы за Объект, опре Читать еще деленной по итогам аукциона.

Еще 8 фото
Василеостровская
Объект нежилого фонда (помещение) Санкт-Петербург г, 16-я В.О. линия, дом 13/46, литер Д Показать на карте

Площадь: 18.4м2

Район: Василеостровский

Еще 5 фото
Василеостровская
Нежилое помещение в аренду Санкт-Петербург г, 4-я В.О. линия, дом 19, литер А Показать на карте

Площадь: 30.3м2

Район: Василеостровский

Начальная ставка: 147 026,52 руб.

Еще 9 фото
Спортивная
Объект нежилого фонда (помещение) Санкт-Петербург г, Ждановская наб, дом 11/1, литер Е Показать на карте

Площадь: 24.6м2

Район: Василеостровский

Начальная цена: 3 390 000 руб.

Еще 4 фото
Василеостровская
Нежилое помещение в аренду Санкт-Петербург г, 6-я В.О. линия, дом 47, литер А Показать на карте

Площадь: 56.7м2

Район: Василеостровский

Начальная ставка: 184 752,18 руб.

Прямоугольник 2 копия Прямоугольник 2 копия 2 chat chat Прямоугольник, скругл. углы 1 копия 6 profile