Вход
Восстановление пароля
Введите код из SMS
Введите новый пароль
8 (812) 777-27-27

Добавить лот

Чтобы реализовать свою недвижимость на площадке Фонда Имущества, отправьте нам информацию об объекте:

{{smsCtrl.telMsg}}
{{smsCtrl.codeMsg}}
Отправить еще раз
Добавляя лот, вы соглашаетесь с Договором оферты

Авторизация
Авторизируйтесь для добавления объекта и участия в рейтинге

Зарегистрироваться

Оцените по достоинству личный кабинет на сайте Фонда Имущества
Вы можете зарегистрироваться
чтобы воспользоваться новым функционалом
О сайте

Название: сетевое издание «фондимущества.рф»

Учредитель: АО «Фонд Имущества Санкт-Петербурга»

Главный редактор: Голыгина А.В.

Электронная почта: pochta@property-fund.ru

Телефон: +7 (812) 426-11-11

Свидетельство о регистрации: ЭЛ № ФС 77 - 73029

Номер лота 3624
Объект нежилого фонда (помещение) Извещение о проведении торгов
23 января
2026
11:00
пятница

Адрес: Санкт-Петербург г, Кирочная ул, дом 37, литер А

Район: Центральный    Чернышевская

Форма проведения:
Аукцион с открытой формой подачи предложений

Место проведения торгов:
Электронная площадка АО «Российский аукционный дом» (раздел «Приватизация») - www.lot-online.ru

Организатор торгов:
АО «Российский аукционный дом»

Сведения о процедуре
Начальная цена 1 900 000 руб.
Размер задатка 1 900 000 руб.
Шаг аукциона 95 000 руб.
Определение участников торгов 21.01.2026 15:00
Дата публикации 12.12.25
Тип сделки Продажа
Тип торгов Электронные
Дата начала приема заявок 12.12.25, 10:00
Дата окончания приема заявок 15.01.26, 23:00
Срок поступления задатка 16.01.26
Дата торгов 23.01.26
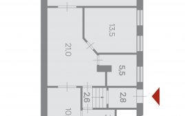
Сведения об объекте
Адрес Санкт-Петербург г, Кирочная ул, дом 37, литер А
Помещение 13-Н
Кадастровый номер 78:31:0001210:4976
Функциональное назначение Универсальное
Площадь кв. м 29,8 м2
Этаж расположения цоколь
Тип входа 1 общий с улицы, 1 общий со двора
Элементы благоустройства Есть
Еще 4 фото
Обводный канал
Объект нежилого фонда (помещение) Санкт-Петербург г, Лиговский пр-кт, дом 126, литер А Показать на карте

Площадь: 10.7м2

Район: Центральный

Начальная цена: 2 016 000 руб.

Еще 17 фото
Чернышевская
Объект нежилого фонда (помещение) Санкт-Петербург г, Суворовский пр-кт, дом 61, литер А Показать на карте

Площадь: 67.8м2

Район: Центральный

Дата торгов: 21.01.26

Начальная цена: 5 280 000 руб.

Еще 4 фото
Маяковская
Объект нежилого фонда (помещение) Санкт-Петербург г, Марата ул, дом 43, литер А Показать на карте

Площадь: 76.5м2

Район: Центральный

Дата торгов: 20.01.26

Начальная цена: 7 750 000 руб.

Еще 14 фото
Владимирская
Объект нежилого фонда (помещение) Санкт-Петербург г, Достоевского ул, дом 24/9, литер А Показать на карте

Площадь: 100.6м2

Район: Центральный

Дата торгов: 20.01.26

Начальная цена: 5 600 000 руб.

Прямоугольник 2 копия Прямоугольник 2 копия 2 chat chat Прямоугольник, скругл. углы 1 копия 6 profile