Вход
Восстановление пароля
Введите код из SMS
Введите новый пароль
8 (812) 777-27-27

Добавить лот

Чтобы реализовать свою недвижимость на площадке Фонда Имущества, отправьте нам информацию об объекте:

{{smsCtrl.telMsg}}
{{smsCtrl.codeMsg}}
Отправить еще раз
Добавляя лот, вы соглашаетесь с Договором оферты

Авторизация
Авторизируйтесь для добавления объекта и участия в рейтинге

Зарегистрироваться

Оцените по достоинству личный кабинет на сайте Фонда Имущества
Вы можете зарегистрироваться
чтобы воспользоваться новым функционалом
О сайте

Название: сетевое издание «фондимущества.рф»

Учредитель: АО «Фонд Имущества Санкт-Петербурга»

Главный редактор: Голыгина А.В.

Электронная почта: pochta@property-fund.ru

Телефон: +7 (812) 426-11-11

Свидетельство о регистрации: ЭЛ № ФС 77 - 73029

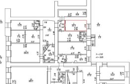
Номер лота 3769
Объект нежилого фонда (помещение) Извещение о проведении торгов
23 мая
2024
11:00
четверг

Адрес: Санкт-Петербург г, Константина Заслонова ул, дом 27, литер Б

Район: Центральный   

Форма проведения:
Аукцион с открытой формой подачи предложений

Место проведения торгов:
Электронная площадка АО «Российский аукционный дом» (раздел «Приватизация») - www.lot-online.ru

Организатор торгов:
АО «Российский аукционный дом»

Сведения о процедуре
Начальная цена 6 340 000 руб.
Размер задатка 634 000 руб.
Шаг аукциона 315 000 руб.
Цена продажи 7 600 000 руб.
Определение участников торгов 21.05.2024 15:00
Тип сделки Продажа
Тип торгов Электронные
Дата начала приема заявок 05.04.24, 10:00
Дата окончания приема заявок 15.05.24, 23:00
Срок поступления задатка 16.05.24
Дата торгов 23.05.24
Сведения об объекте
Адрес Санкт-Петербург г, Константина Заслонова ул, дом 27, литер Б
Помещение 3-Н
Кадастровый номер 78:31:0001696:3152
Функциональное назначение Универсальное
Площадь кв. м 48,1 м2
Этаж расположения 1
Тип входа 1 общий с улицы
Элементы благоустройства Есть
Еще 5 фото
Чернышевская
Объект нежилого фонда (помещение) Санкт-Петербург г, Кирочная ул, дом 37, литер А Показать на карте

Площадь: 10.3м2

Район: Центральный

Дата торгов: 06.05.26

Начальная цена: 683 200 руб.

Еще 8 фото
Площадь Александра Невского
Объект нежилого фонда (помещение) Санкт-Петербург г, Конная ул, дом 20/6, литер А Показать на карте

Площадь: 8.4м2

Район: Центральный

Дата торгов: 29.04.25

Начальная цена: 650 000 руб.

Еще 17 фото
Чернышевская
Объект нежилого фонда (помещение) Санкт-Петербург г, Кирочная ул, дом 37, литер А Показать на карте

Площадь: 10.3м2

Район: Центральный

Дата торгов: 06.05.26

Начальная цена: 683 200 руб.

Еще 8 фото
Площадь Восстания
Объект нежилого фонда (помещение Санкт-Петербург г, 4-я Советская ул, дом 10, литер А Показать на карте

Площадь: 23.7м2

Район: Центральный

Дата торгов: 15.04.26

Начальная цена: 1 821 000 руб.

Прямоугольник 2 копия Прямоугольник 2 копия 2 chat chat Прямоугольник, скругл. углы 1 копия 6 profile