Вход
Восстановление пароля
Введите код из SMS
Введите новый пароль
8 (812) 777-27-27

Добавить лот

Чтобы реализовать свою недвижимость на площадке Фонда Имущества, отправьте нам информацию об объекте:

{{smsCtrl.telMsg}}
{{smsCtrl.codeMsg}}
Отправить еще раз
Добавляя лот, вы соглашаетесь с Договором оферты

Авторизация
Авторизируйтесь для добавления объекта и участия в рейтинге

Зарегистрироваться

Оцените по достоинству личный кабинет на сайте Фонда Имущества
Вы можете зарегистрироваться
чтобы воспользоваться новым функционалом
О сайте

Название: сетевое издание «фондимущества.рф»

Учредитель: АО «Фонд Имущества Санкт-Петербурга»

Главный редактор: Голыгина А.В.

Электронная почта: pochta@property-fund.ru

Телефон: +7 (812) 426-11-11

Свидетельство о регистрации: ЭЛ № ФС 77 - 73029

Номер лота 4032
Объект нежилого фонда (помещение) Извещение о проведении торгов
25 сентября
2025
11:00
четверг

Адрес: Санкт-Петербург г, Зайцева ул, дом 9, литер А

Район: Кировский    Автово

Форма проведения:
Аукцион с открытой формой подачи предложений

Место проведения торгов:
Электронная площадка АО «Российский аукционный дом» (раздел «Приватизация») - www.lot-online.ru

Организатор торгов:
АО «Российский аукционный дом»

Сведения о процедуре
Начальная цена 2 232 000 руб.
Размер задатка 223 200 руб.
Шаг аукциона 111 000 руб.
Цена продажи 2 232 000 руб.
Определение участников торгов 23.09.2025 15:00
Тип сделки Продажа
Тип торгов Электронные
Дата начала приема заявок 22.08.25, 10:00
Дата окончания приема заявок 17.09.25, 23:00
Срок поступления задатка 18.09.25
Дата торгов 25.09.25
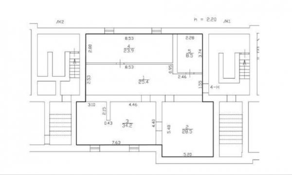
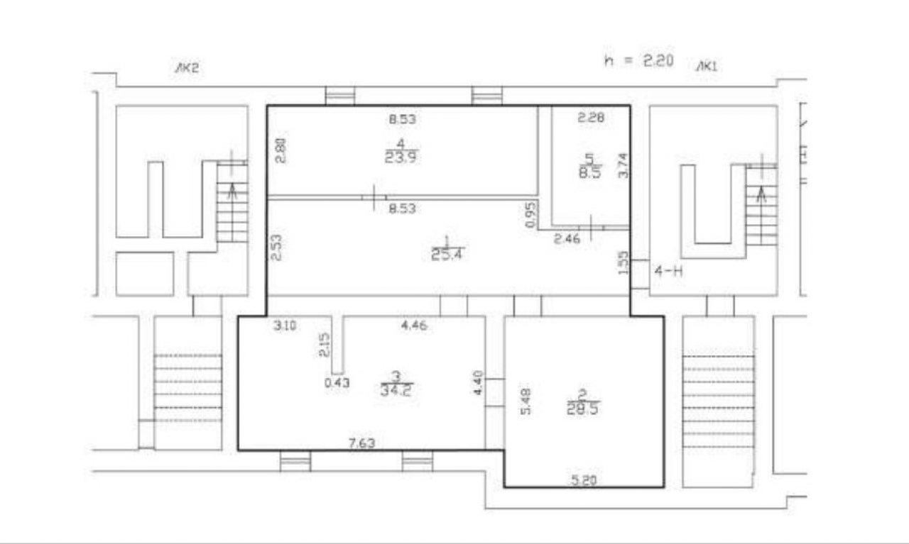
Сведения об объекте
Адрес Санкт-Петербург г, Зайцева ул, дом 9, литер А
Помещение 4-Н
Кадастровый номер 78:15:0008203:2053
Функциональное назначение Универсальное
Площадь кв. м 120,5 м2
Этаж расположения подвал
Тип входа 1 общий вход со двора
Элементы благоустройства Есть
Еще 6 фото
Автово
Объект нежилого фонда (помещение) Санкт-Петербург г, Стачек пр-кт, дом 79, литер А Показать на карте

Площадь: 30.5м2

Район: Кировский

Дата торгов: 18.12.25

Начальная цена: 1 536 000 руб.

Еще 12 фото
Проспект Ветеранов
Объект нежилого фонда (помещение) Санкт-Петербург г, Маршала Жукова пр-кт, дом 70, корпус 1, литер А Показать на карте

Площадь: 55.6м2

Район: Кировский

Дата торгов: 22.12.25

Начальная цена: 3 640 000 руб.

Еще 4 фото
Проспект Ветеранов
Объект нежилого фонда (помещение) Санкт-Петербург г, Здоровцева ул, дом 10, литер А Показать на карте

Площадь: 21.4м2

Район: Красносельский

Дата торгов: 18.12.25

Начальная цена: 2 172 000 руб.

Еще 6 фото
Купчино
Объект нежилого фонда (помещение) Санкт-Петербург г, Купчинская ул, дом 23, корпус 1, литер В Показать на карте

Площадь: 60.6м2

Район: Фрунзенский

Дата торгов: 21.01.26

Начальная цена: 5 244 000 руб.

Прямоугольник 2 копия Прямоугольник 2 копия 2 chat chat Прямоугольник, скругл. углы 1 копия 6 profile