Вход
Восстановление пароля
Введите код из SMS
Введите новый пароль
8 (812) 777-27-27

Добавить лот

Чтобы реализовать свою недвижимость на площадке Фонда Имущества, отправьте нам информацию об объекте:

{{smsCtrl.telMsg}}
{{smsCtrl.codeMsg}}
Отправить еще раз
Добавляя лот, вы соглашаетесь с Договором оферты

Авторизация
Авторизируйтесь для добавления объекта и участия в рейтинге

Зарегистрироваться

Оцените по достоинству личный кабинет на сайте Фонда Имущества
Вы можете зарегистрироваться
чтобы воспользоваться новым функционалом
О сайте

Название: сетевое издание «фондимущества.рф»

Учредитель: АО «Фонд Имущества Санкт-Петербурга»

Главный редактор: Голыгина А.В.

Электронная почта: pochta@property-fund.ru

Телефон: +7 (812) 426-11-11

Свидетельство о регистрации: ЭЛ № ФС 77 - 73029

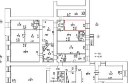
Номер лота 4036
Объект нежилого фонда (помещение) Извещение о проведении торгов
07 августа
2024
11:00
среда

Адрес: Санкт-Петербург г, Караванная ул, дом 24-26, литер А

Район: Центральный    Гостиный Двор

Форма проведения:
Аукцион с открытой формой подачи предложений

Место проведения торгов:
Электронная площадка АО «Российский аукционный дом» (раздел «Приватизация») - www.lot-online.ru

Организатор торгов:
АО «Российский аукционный дом»

Сведения о процедуре
Начальная цена 16 700 000 руб.
Размер задатка 1 670 000 руб.
Шаг аукциона 835 000 руб.
Цена продажи 29 225 000 руб.
Определение участников торгов 05.08.2024 15:00
Дата публикации 05.07.24
Тип сделки Продажа
Тип торгов Электронные
Дата начала приема заявок 05.07.24, 10:00
Дата окончания приема заявок 30.07.24, 23:00
Срок поступления задатка 31.07.24
Дата торгов 07.08.24
Сведения об объекте
Адрес Санкт-Петербург г, Караванная ул, дом 24-26, литер А
Помещение 33-Н
Кадастровый номер 78:31:0001284:1564
Функциональное назначение Универсальное
Площадь кв. м 189,3 м2
Этаж расположения подвал
Тип входа 1 общий с улицы, 2 отдельных со двора
Элементы благоустройства Есть
Еще 9 фото
Площадь Восстания
Объект нежилого фонда (помещение) Санкт-Петербург г, Гончарная ул, дом 16, литер А Показать на карте

Площадь: 223.4м2

Район: Центральный

Дата торгов: 31.03.26

Начальная цена: 23 131 200 руб.

Еще 7 фото
Чернышевская
Объект нежилого фонда (помещение) Санкт-Петербург г, Чайковского ул, дом 43, литер А Показать на карте

Площадь: 34.1м2

Район: Центральный

Начальная цена: 2 300 000 руб.

Еще 7 фото
Чернышевская
Объект нежилого фонда (помещение) Санкт-Петербург г, Кирочная ул, дом 37, литер А Показать на карте

Площадь: 8.9м2

Район: Центральный

Дата торгов: 13.03.26

Начальная цена: 793 000 руб.

Еще 6 фото
Чернышевская
Объект нежилого фонда (помещение) Санкт-Петербург г, Кирочная ул, дом 37, литер А Показать на карте

Площадь: 26.5м2

Район: Центральный

Дата торгов: 13.03.26

Начальная цена: 1 952 000 руб.

Прямоугольник 2 копия Прямоугольник 2 копия 2 chat chat Прямоугольник, скругл. углы 1 копия 6 profile