Вход
Восстановление пароля
Введите код из SMS
Введите новый пароль
8 (812) 777-27-27

Добавить лот

Чтобы реализовать свою недвижимость на площадке Фонда Имущества, отправьте нам информацию об объекте:

{{smsCtrl.telMsg}}
{{smsCtrl.codeMsg}}
Отправить еще раз
Добавляя лот, вы соглашаетесь с Договором оферты

Авторизация
Авторизируйтесь для добавления объекта и участия в рейтинге

Зарегистрироваться

Оцените по достоинству личный кабинет на сайте Фонда Имущества
Вы можете зарегистрироваться
чтобы воспользоваться новым функционалом
О сайте

Название: сетевое издание «фондимущества.рф»

Учредитель: АО «Фонд Имущества Санкт-Петербурга»

Главный редактор: Голыгина А.В.

Электронная почта: pochta@property-fund.ru

Телефон: +7 (812) 426-11-11

Свидетельство о регистрации: ЭЛ № ФС 77 - 73029

Номер лота 4850
Нежилое помещение в аренду для субъектов малого и среднего предпринимательства в Санкт-Петербурге Извещение о проведении торгов
26 ноября
2025
12:00
среда

Адрес: Санкт-Петербург г, Ветеранов пр-кт, дом 47, литер А

Район: Кировский    Проспект Ветеранов

Форма проведения:
Аукцион с открытой формой подачи предложений

Место проведения торгов:
Универсальная торговая платформа АО «Сбербанк-АСТ» (торговая секция «Приватизация, аренда и продажа прав») - utp.sberbank-ast.ru

Организатор торгов:
АО «Фонд имущества Санкт-Петербурга»

Сведения о процедуре
Начальная цена 390 386,82 руб.
Размер задатка 390 386,82 руб.
Шаг аукциона 19 519,34 руб.
Цена продажи 722 215,60 руб.
Определение участников торгов 26.11.2025
Дата публикации 21.10.25
Тип сделки Аренда
Тип торгов Электронные
Дата начала приема заявок 22.10.25, 16:00
Дата окончания приема заявок 24.11.25, 10:00
Срок поступления задатка 24.11.25
Дата торгов 26.11.25
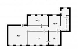
Сведения об объекте
Адрес Санкт-Петербург г, Ветеранов пр-кт, дом 47, литер А
Помещение 2-Н (ч п. 1-5, 12-16)
Кадастровый номер 78:15:0008431:6423
Функциональное назначение Офисное
Площадь кв. м 90,4 м2
Этаж расположения цоколь
Тип входа 2 отдельных со двора
Элементы благоустройства Есть
Примечания

НАЧАЛЬНАЯ ЦЕНА (ВЕЛИЧИНА ГОДОВОЙ АРЕНДНОЙ ПЛАТЫ) СНИЖЕНА НА 25%. Обременения: см. извещение о проведении торгов. Самовольная перепланировка. Лицо, с которым должен быть заключен договор аренды, обязано выплатить специализированной организации вознаграждение в размере месячной арендной платы за Объект, определенной по итогам аукциона.

Еще 4 фото
Ленинский проспект
Нежилое помещение в аренду Санкт-Петербург г, Ленинский пр-кт, дом 130/6, литер А Показать на карте

Площадь: 16.3м2

Район: Кировский

Дата торгов: 04.03.26

Начальная ставка: 177 999,24 руб.

Еще 8 фото
Балтийская
Нежилое помещение в аренду для субъектов малого и среднего предпринимательства в Санкт-Петербурге Санкт-Петербург г, Балтийская ул, дом 64, литер А Показать на карте

Площадь: 63.3м2

Район: Кировский

Дата торгов: 25.03.26

Начальная ставка: 242 387,28 руб.

Еще 9 фото
Нежилое помещение в аренду для субъектов малого и среднего предпринимательства в Санкт-Петербурге Санкт-Петербург г, Канонерский остров, дом 8, литер А Показать на карте

Площадь: 34.7м2

Район: Кировский

Дата торгов: 01.04.26

Начальная ставка: 172 520,68 руб.

Еще 6 фото
Нежилое помещение в аренду для субъектов малого и среднего предпринимательства в Санкт-Петербурге Санкт-Петербург г, Канонерский остров, дом 8, литер А Показать на карте

Площадь: 82м2

Район: Кировский

Начальная ставка: 263 240,01 руб.

Прямоугольник 2 копия Прямоугольник 2 копия 2 chat chat Прямоугольник, скругл. углы 1 копия 6 profile