Вход
Восстановление пароля
Введите код из SMS
Введите новый пароль
8 (812) 777-27-27

Добавить лот

Чтобы реализовать свою недвижимость на площадке Фонда Имущества, отправьте нам информацию об объекте:

{{smsCtrl.telMsg}}
{{smsCtrl.codeMsg}}
Отправить еще раз
Добавляя лот, вы соглашаетесь с Договором оферты

Авторизация
Авторизируйтесь для добавления объекта и участия в рейтинге

Зарегистрироваться

Оцените по достоинству личный кабинет на сайте Фонда Имущества
Вы можете зарегистрироваться
чтобы воспользоваться новым функционалом
О сайте

Название: сетевое издание «фондимущества.рф»

Учредитель: АО «Фонд Имущества Санкт-Петербурга»

Главный редактор: Голыгина А.В.

Электронная почта: pochta@property-fund.ru

Телефон: +7 (812) 426-11-11

Свидетельство о регистрации: ЭЛ № ФС 77 - 73029

Номер лота 4935
Нежилое помещение в аренду Извещение о проведении торгов
26 ноября
2025
12:00
среда

Адрес: Санкт-Петербург г, Большой Казачий пер, дом 9, литер А

Район: Адмиралтейский    Пушкинская

Форма проведения:
Аукцион с открытой формой подачи предложений

Место проведения торгов:
Универсальная торговая платформа АО «Сбербанк-АСТ» (торговая секция «Приватизация, аренда и продажа прав») - utp.sberbank-ast.ru

Организатор торгов:
АО «Фонд имущества Санкт-Петербурга»

Сведения о процедуре
Начальная цена 450 511,12 руб.
Размер задатка 450 511,12 руб.
Шаг аукциона 22 525,56 руб.
Определение участников торгов 26.11.2025
Дата публикации 21.10.25
Тип сделки Аренда
Тип торгов Электронные
Дата начала приема заявок 22.10.25, 16:00
Дата окончания приема заявок 24.11.25, 10:00
Срок поступления задатка 24.11.25
Дата торгов 26.11.25
Сведения об объекте
Адрес Санкт-Петербург г, Большой Казачий пер, дом 9, литер А
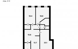
Помещение 9-Н
Кадастровый номер 78:32:0001618:1520
Функциональное назначение Офисное
Площадь кв. м 76,5 м2
Этаж расположения 1
Тип входа 2 отдельных со двора
Элементы благоустройства Есть
Примечания

Начальная цена - величина годовой арендной платы. Обременения: см. извещение о проведении торгов. Объект расположен в здании, являющемся объектом культурного наследия регионального значения «Дом Зайцева (Ф.И.Кривдина)». Обязанность арендатора по присоединению Объекта к электросетям. Самовольная перепланировка. Лицо, с которым должен быть заключен договор аренды, обязано выплатить специализированной организации вознаграждение в размере месячной арендной платы за Объект, определенной по итогам аук Читать еще циона.

Еще 5 фото
Адмиралтейская
Нежилое помещение в аренду для субъектов малого и среднего предпринимательства в Санкт-Петербурге Санкт-Петербург г, Адмиралтейская наб, дом 12-14, литер А Показать на карте

Площадь: 77.5м2

Район: Адмиралтейский

Начальная ставка: 352 976,79 руб.

Еще 11 фото
Балтийская
Нежилое помещение в аренду для субъектов малого и среднего предпринимательства в Санкт-Петербурге Санкт-Петербург г, 8-я Красноармейская ул, дом 23, литер А Показать на карте

Площадь: 102.7м2

Район: Адмиралтейский

Дата торгов: 26.11.25

Начальная ставка: 982 891,44 руб.

Еще 6 фото
Садовая
Нежилое помещение в аренду для субъектов малого и среднего предпринимательства в Санкт-Петербурге Санкт-Петербург г, Декабристов ул, дом 16, литер А Показать на карте

Площадь: 115.6м2

Район: Адмиралтейский

Начальная ставка: 510 913,98 руб.

Еще 10 фото
Нарвская
Объект нежилого фонда (помещение) Санкт-Петербург г, Старо-Петергофский пр-кт, дом 41, литер А Показать на карте

Площадь: 50.7м2

Район: Адмиралтейский

Дата торгов: 13.11.25

Начальная цена: 6 180 000 руб.

Прямоугольник 2 копия Прямоугольник 2 копия 2 chat chat Прямоугольник, скругл. углы 1 копия 6 profile