Вход
Восстановление пароля
Введите код из SMS
Введите новый пароль
8 (812) 777-27-27

Добавить лот

Чтобы реализовать свою недвижимость на площадке Фонда Имущества, отправьте нам информацию об объекте:

{{smsCtrl.telMsg}}
{{smsCtrl.codeMsg}}
Отправить еще раз
Добавляя лот, вы соглашаетесь с Договором оферты

Авторизация
Авторизируйтесь для добавления объекта и участия в рейтинге

Зарегистрироваться

Оцените по достоинству личный кабинет на сайте Фонда Имущества
Вы можете зарегистрироваться
чтобы воспользоваться новым функционалом
О сайте

Название: сетевое издание «фондимущества.рф»

Учредитель: АО «Фонд Имущества Санкт-Петербурга»

Главный редактор: Голыгина А.В.

Электронная почта: pochta@property-fund.ru

Телефон: +7 (812) 426-11-11

Свидетельство о регистрации: ЭЛ № ФС 77 - 73029

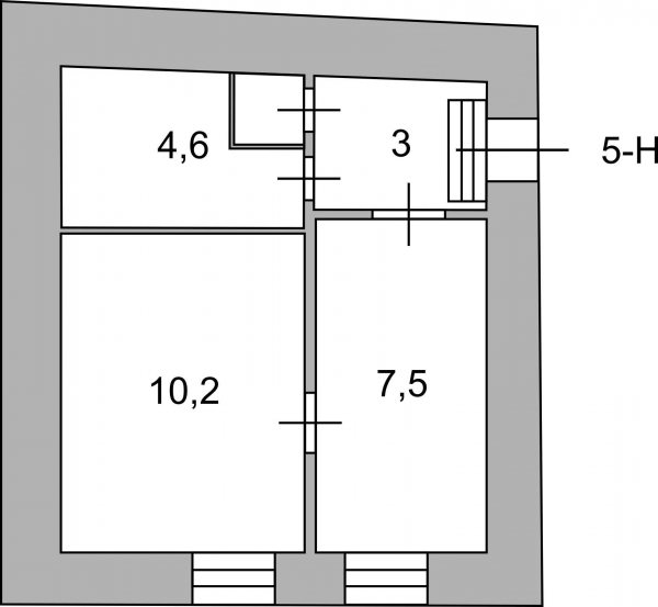
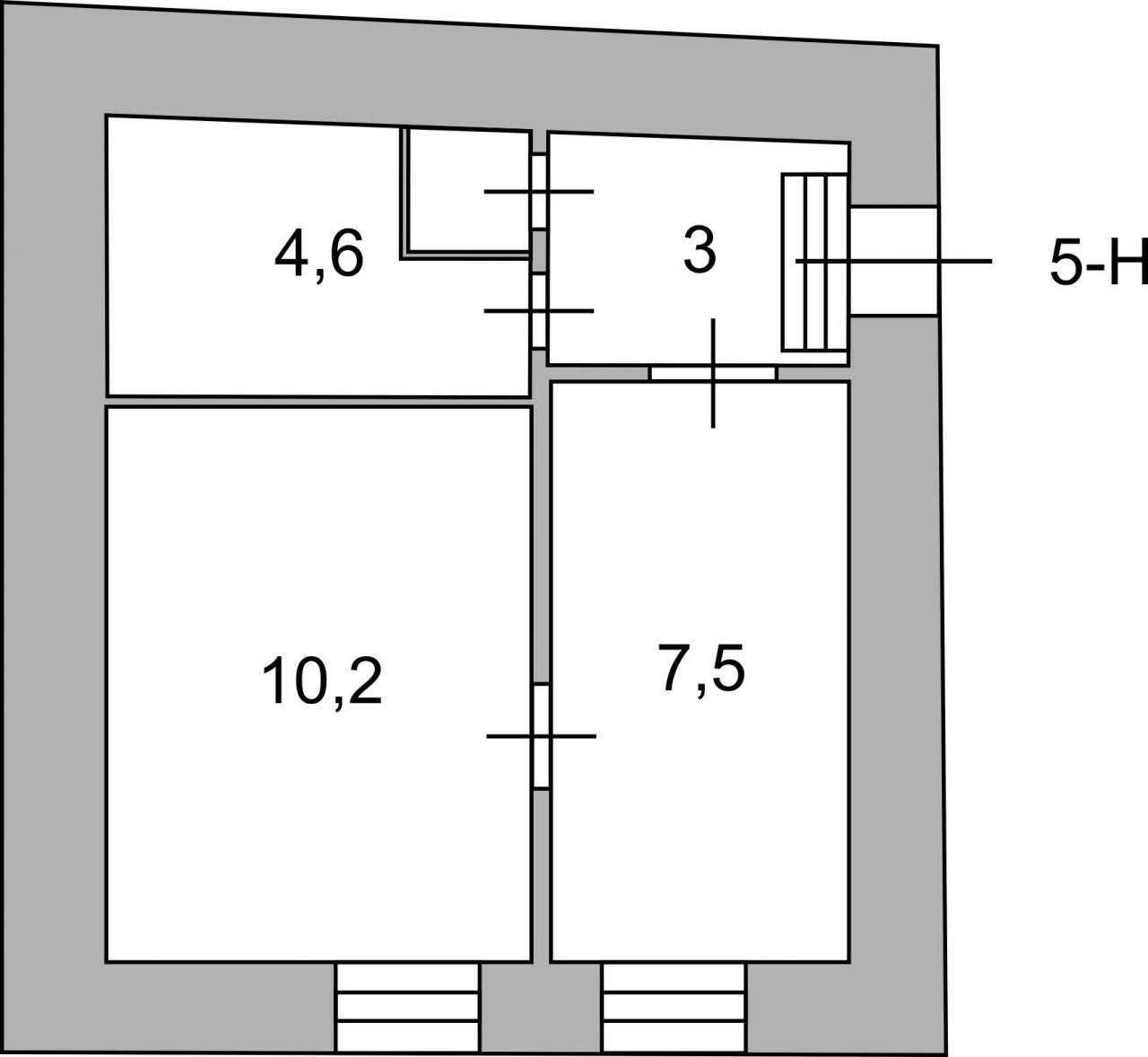
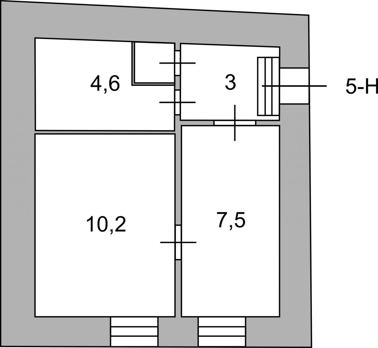
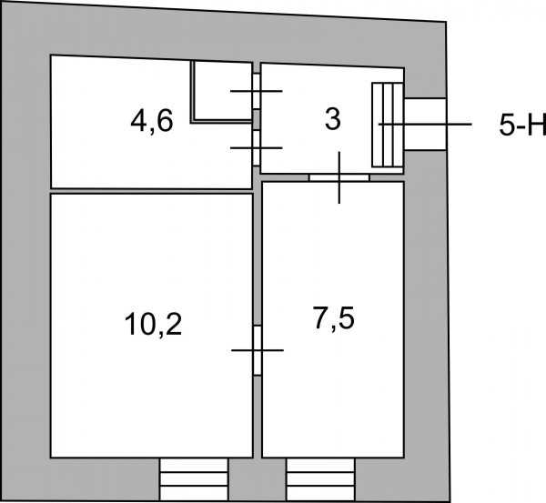
Номер лота 5099
Объект нежилого фонда (помещение) Извещение о проведении торгов
11 марта
2026
10:00
среда

Адрес: Санкт-Петербург г, Подольская ул, дом 41, литер Б

Район: Адмиралтейский    Технологический институт

Форма проведения:
Аукцион с открытой формой подачи предложений

Место проведения торгов:
Электронная площадка АО «Российский аукционный дом» (раздел «Приватизация») - www.lot-online.ru

Организатор торгов:
АО «Российский аукционный дом»

Сведения о процедуре
Начальная цена 5 197 200 руб.
Размер задатка 519 720 руб.
Шаг аукциона 259 000 руб.
Определение участников торгов 06.03.2026 15:00
Дата публикации 04.02.26
Тип сделки Продажа
Тип торгов Электронные
Дата начала приема заявок 04.02.26, 12:00
Дата окончания приема заявок 02.03.26, 23:00
Срок поступления задатка 02.03.26
Дата торгов 11.03.26
Сведения об объекте
Адрес Санкт-Петербург г, Подольская ул, дом 41, литер Б
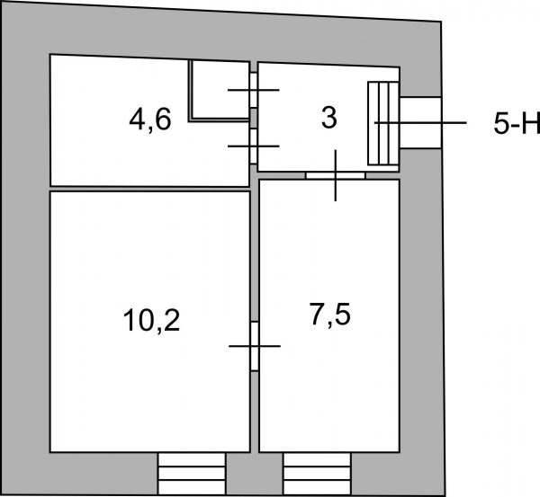
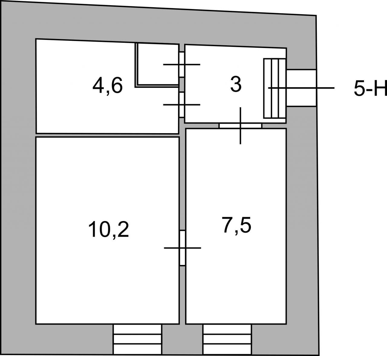
Помещение 5-Н
Кадастровый номер 78:32:0001713:1222
Функциональное назначение Нежилое
Площадь кв. м 26,2 м2
Этаж расположения 1
Тип входа 1 общий вход со двора
Элементы благоустройства Есть
Еще 2 фото
Балтийская
Объект нежилого фонда (помещение) Санкт-Петербург г, Шкапина ул, дом 22, литер А Показать на карте

Площадь: 143.2м2

Район: Адмиралтейский

Дата торгов: 30.01.20

Начальная цена: 2 448 000 руб.

Еще 7 фото
Балтийская
Объект нежилого фонда (помещение) Санкт-Петербург г, 11-я Красноармейская ул, дом 13, литер А Показать на карте

Площадь: 25.5м2

Район: Адмиралтейский

Дата торгов: 11.03.26

Начальная цена: 3 070 000 руб.

Еще 3 фото
Технологический институт
Нежилое помещение в аренду для субъектов малого и среднего предпринимательства в Санкт-Петербурге Санкт-Петербург г, Верейская ул, дом 29, литер А Показать на карте

Площадь: 93.3м2

Район: Адмиралтейский

Дата торгов: 29.10.20

Начальная ставка: 680 633,16 руб.

Еще 5 фото
Адмиралтейская
Нежилое помещение в аренду для субъектов малого и среднего предпринимательства в Санкт-Петербурге Санкт-Петербург г, Галерная ул, дом 25, литер А Показать на карте

Площадь: 121.6м2

Район: Адмиралтейский

Начальная ставка: 417 711,60 руб.

Прямоугольник 2 копия Прямоугольник 2 копия 2 chat chat Прямоугольник, скругл. углы 1 копия 6 profile