Вход
Восстановление пароля
Введите код из SMS
Введите новый пароль
8 (812) 777-27-27

Добавить лот

Чтобы реализовать свою недвижимость на площадке Фонда Имущества, отправьте нам информацию об объекте:

{{smsCtrl.telMsg}}
{{smsCtrl.codeMsg}}
Отправить еще раз
Добавляя лот, вы соглашаетесь с Договором оферты

Авторизация
Авторизируйтесь для добавления объекта и участия в рейтинге

Зарегистрироваться

Оцените по достоинству личный кабинет на сайте Фонда Имущества
Вы можете зарегистрироваться
чтобы воспользоваться новым функционалом
О сайте

Название: сетевое издание «фондимущества.рф»

Учредитель: АО «Фонд Имущества Санкт-Петербурга»

Главный редактор: Голыгина А.В.

Электронная почта: pochta@property-fund.ru

Телефон: +7 (812) 426-11-11

Свидетельство о регистрации: ЭЛ № ФС 77 - 73029

Номер лота 3957
Нежилое помещение в аренду для субъектов малого и среднего предпринимательства в Санкт-Петербурге Извещение о проведении торгов
03 июля
2024
12:00
среда

Адрес: Санкт-Петербург г, Моисеенко ул, дом 16, литер Д

Район: Центральный    Чернышевская

Форма проведения:
Аукцион с открытой формой подачи предложений

Место проведения торгов:
Универсальная торговая платформа АО «Сбербанк-АСТ» (торговая секция «Приватизация, аренда и продажа прав») - utp.sberbank-ast.ru

Организатор торгов:
АО «Фонд имущества Санкт-Петербурга»

Сведения о процедуре
Начальная цена 59 747,12 руб.
Размер задатка 59 747,12 руб.
Шаг аукциона 2 987,36 руб.
Цена продажи 445 116,56 руб.
Определение участников торгов 03.07.2024
Дата публикации 31.05.24
Тип сделки Аренда
Тип торгов Электронные
Дата начала приема заявок 01.06.04, 09:00
Дата окончания приема заявок 01.07.24, 10:00
Срок поступления задатка 01.07.24
Дата торгов 03.07.24
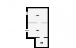
Сведения об объекте
Адрес Санкт-Петербург г, Моисеенко ул, дом 16, литер Д
Помещение 3-Н
Кадастровый номер 78:31:0103402:2393
Функциональное назначение Офисное
Площадь кв. м 20,4 м2
Этаж расположения цоколь
Тип входа 1 отдельный со двора
Элементы благоустройства Есть
Примечания

Начальная цена - величина годовой арендной платы. Обременения: см. извещение о проведении торгов. Объект находится в здании, которое не относится к числу объектов (выявленных объектов) культурного наследия, расположено в границах зон охраны и (или) защитных зон объектов культурного наследия на территории Санкт-Петербурга: единой зоне регулирования застройки и хозяйственной деятельности 2 (участок ОЗРЗ-2(31)). Обязанность арендатора по присоединению Объекта к электросетям. Лицо, с которым должен Читать еще быть заключен договор аренды, обязано выплатить специализированной организации вознаграждение в размере месячной арендной платы за Объект, определенной по итогам аукциона.

Еще 9 фото
Чернышевская
Нежилое помещение в аренду для субъектов малого и среднего предпринимательства в Санкт-Петербурге Санкт-Петербург г, Пестеля ул, дом 11, литер А Показать на карте

Площадь: 86.6м2

Район: Центральный

Дата торгов: 10.12.25

Начальная ставка: 401 888,61 руб.

Еще 4 фото
Чернышевская
Нежилое помещение в аренду для субъектов малого и среднего предпринимательства в Санкт-Петербурге Санкт-Петербург г, Моховая ул, дом 27-29, литер А Показать на карте

Площадь: 29.3м2

Район: Центральный

Дата торгов: 10.12.25

Начальная ставка: 286 812,84 руб.

Еще 6 фото
Площадь Восстания
Нежилое помещение в аренду для субъектов малого и среднего предпринимательства в Санкт-Петербурге Санкт-Петербург г, 9-я Советская ул, дом 39/24, литер А Показать на карте

Площадь: 127.1м2

Район: Центральный

Начальная ставка: 804 681,51 руб.

Еще 7 фото
Чернышевская
Нежилое помещение в аренду для субъектов малого и среднего предпринимательства в Санкт-Петербурге Санкт-Петербург г, Кутузова наб, дом 32, литер А Показать на карте

Площадь: 94.2м2

Район: Центральный

Начальная ставка: 606 800,22 руб.

Прямоугольник 2 копия Прямоугольник 2 копия 2 chat chat Прямоугольник, скругл. углы 1 копия 6 profile