Вход
Восстановление пароля
Введите код из SMS
Введите новый пароль
8 (812) 777-27-27

Добавить лот

Чтобы реализовать свою недвижимость на площадке Фонда Имущества, отправьте нам информацию об объекте:

{{smsCtrl.telMsg}}
{{smsCtrl.codeMsg}}
Отправить еще раз
Добавляя лот, вы соглашаетесь с Договором оферты

Авторизация
Авторизируйтесь для добавления объекта и участия в рейтинге

Зарегистрироваться

Оцените по достоинству личный кабинет на сайте Фонда Имущества
Вы можете зарегистрироваться
чтобы воспользоваться новым функционалом
О сайте

Название: сетевое издание «фондимущества.рф»

Учредитель: АО «Фонд Имущества Санкт-Петербурга»

Главный редактор: Голыгина А.В.

Электронная почта: pochta@property-fund.ru

Телефон: +7 (812) 426-11-11

Свидетельство о регистрации: ЭЛ № ФС 77 - 73029

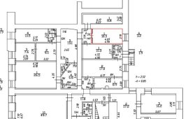
Номер лота 4902
Объект нежилого фонда (помещение) Извещение о проведении торгов
18 марта
2026
11:00
среда

Адрес: Санкт-Петербург г, Литейный пр-кт, дом 53, литер А

Район: Центральный    Маяковская

Форма проведения:
Аукцион с открытой формой подачи предложений

Место проведения торгов:
Электронная площадка АО «Российский аукционный дом» (раздел «Приватизация») - www.lot-online.ru

Организатор торгов:
АО «Российский аукционный дом»

Сведения о процедуре
Начальная цена 36 600 000 руб.
Размер задатка 3 660 000 руб.
Шаг аукциона 1 830 000 руб.
Определение участников торгов 16.03.2026 15:00
Дата публикации 12.02.26
Тип сделки Продажа
Тип торгов Электронные
Дата начала приема заявок 12.02.26, 12:00
Дата окончания приема заявок 10.03.26, 23:00
Срок поступления задатка 11.03.26
Дата торгов 18.03.26
Сведения об объекте
Адрес Санкт-Петербург г, Литейный пр-кт, дом 53, литер А
Помещение 21-Н
Кадастровый номер 78:31:0001283:4097
Функциональное назначение Универсальное
Площадь кв. м 246 м2
Этаж расположения подвал
Тип входа отдельный со двора, отдельный с улицы, общий со двора
Элементы благоустройства Есть
Еще 4 фото
Обводный канал
Объект нежилого фонда (помещение) Санкт-Петербург г, Лиговский пр-кт, дом 126, литер А Показать на карте

Площадь: 10.7м2

Район: Центральный

Дата торгов: 04.03.26

Начальная цена: 1 732 400 руб.

Еще 8 фото
Площадь Александра Невского
Объект нежилого фонда (помещение) Санкт-Петербург г, Конная ул, дом 20/6, литер А Показать на карте

Площадь: 8.4м2

Район: Центральный

Дата торгов: 29.04.25

Начальная цена: 650 000 руб.

Еще 9 фото
Площадь Восстания
Объект нежилого фонда (помещение) Санкт-Петербург г, Гончарная ул, дом 16, литер А Показать на карте

Площадь: 223.4м2

Район: Центральный

Дата торгов: 31.03.26

Начальная цена: 23 131 200 руб.

Еще 9 фото
Чернышевская
Объект нежилого фонда (помещение) Санкт-Петербург г, Кирочная ул, дом 37, литер А Показать на карте

Площадь: 29.8м2

Район: Центральный

Дата торгов: 13.03.26

Начальная цена: 2 318 000 руб.

Прямоугольник 2 копия Прямоугольник 2 копия 2 chat chat Прямоугольник, скругл. углы 1 копия 6 profile