Вход
Восстановление пароля
Введите код из SMS
Введите новый пароль
8 (812) 777-27-27

Добавить лот

Чтобы реализовать свою недвижимость на площадке Фонда Имущества, отправьте нам информацию об объекте:

{{smsCtrl.telMsg}}
{{smsCtrl.codeMsg}}
Отправить еще раз
Добавляя лот, вы соглашаетесь с Договором оферты

Авторизация
Авторизируйтесь для добавления объекта и участия в рейтинге

Зарегистрироваться

Оцените по достоинству личный кабинет на сайте Фонда Имущества
Вы можете зарегистрироваться
чтобы воспользоваться новым функционалом
О сайте

Название: сетевое издание «фондимущества.рф»

Учредитель: АО «Фонд Имущества Санкт-Петербурга»

Главный редактор: Голыгина А.В.

Электронная почта: pochta@property-fund.ru

Телефон: +7 (812) 426-11-11

Свидетельство о регистрации: ЭЛ № ФС 77 - 73029

Номер лота 789
Объект нежилого фонда (помещение) Извещение о проведении торгов
21 декабря
2018
09:00
пятница

Адрес: Санкт-Петербург г, Бойцова пер, дом 4, литер А

Район: Адмиралтейский    Садовая

Форма проведения:
Аукцион с открытой формой подачи предложений

Место проведения торгов:
Электронные торги на sberbank-ast.ru

Сведения о процедуре
Начальная цена 6 000 000 руб.
Размер задатка 1 200 000 руб.
Шаг аукциона 100 000 руб.
Цена продажи 10 900 000 руб.
Определение участников торгов 20.12.2018 09:00
Дата публикации 16.11.18
Тип сделки Продажа
Дата начала приема заявок 17.11.18, 09:00
Дата окончания приема заявок 16.12.18, 23:59
Срок поступления задатка 16.12.18
Дата торгов 21.12.18
Сведения об объекте
Адрес Санкт-Петербург г, Бойцова пер, дом 4, литер А
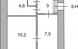
Помещение 14-Н
Кадастровый номер 78:32:0001061:1846
Функциональное назначение Нежилое
Площадь кв. м 95 м2
Этаж расположения 1
Тип входа отдельный с улицы, общий с улицы, отдельный со двора
Элементы благоустройства Есть
Основание для проведения торгов

распоряжение КИО №2174-рз от 30.10.2018

Примечания

Не допущены к торгам
7329 - Васильев Александр Андреевич - оформление документов не соответствует законодательству Российской Федерации;
1715 - ООО "Бастион-Инвест", ИНН 7802678040- представлены не все документы в соответствии с перечнем, указанным в информационном сообщении;
4545 - ООО "Сигма", ИНН 2457060161- представлены не все документы в соответствии с перечнем, указанным в информационном сообщении.

Внимание! Перенос даты подведения итогов торгов в соотв. с Читать еще приказом генерального директора АО «Фонд имущества Санкт-Петербурга» от 20.11.2018 №78-п
Место проведения аукциона: электронная площадка ЗАО «Сбербанк-АСТ» (торговая секция «Приватизация, аренда и продажа прав») - utp.sberbank-ast.ru

Еще 2 фото
Балтийская
Объект нежилого фонда (помещение) Санкт-Петербург г, Шкапина ул, дом 22, литер А Показать на карте

Площадь: 143.2м2

Район: Адмиралтейский

Дата торгов: 30.01.20

Начальная цена: 2 448 000 руб.

Еще 3 фото
Технологический институт
Нежилое помещение в аренду для субъектов малого и среднего предпринимательства в Санкт-Петербурге Санкт-Петербург г, Верейская ул, дом 29, литер А Показать на карте

Площадь: 93.3м2

Район: Адмиралтейский

Дата торгов: 29.10.20

Начальная ставка: 680 633,16 руб.

Еще 10 фото
Балтийская
Нежилое помещение в аренду для субъектов малого и среднего предпринимательства в Санкт-Петербурге Санкт-Петербург г, Садовая ул, дом 105, литер А Показать на карте

Площадь: 16м2

Район: Адмиралтейский

Еще 5 фото
Адмиралтейская
Нежилое помещение в аренду для субъектов малого и среднего предпринимательства в Санкт-Петербурге Санкт-Петербург г, Галерная ул, дом 25, литер А Показать на карте

Площадь: 121.6м2

Район: Адмиралтейский

Начальная ставка: 417 711,60 руб.

Прямоугольник 2 копия Прямоугольник 2 копия 2 chat chat Прямоугольник, скругл. углы 1 копия 6 profile