Вход
Восстановление пароля
Введите код из SMS
Введите новый пароль
8 (812) 777-27-27

Добавить лот

Чтобы реализовать свою недвижимость на площадке Фонда Имущества, отправьте нам информацию об объекте:

{{smsCtrl.telMsg}}
{{smsCtrl.codeMsg}}
Отправить еще раз
Добавляя лот, вы соглашаетесь с Договором оферты

Авторизация
Авторизируйтесь для добавления объекта и участия в рейтинге

Зарегистрироваться

Оцените по достоинству личный кабинет на сайте Фонда Имущества
Вы можете зарегистрироваться
чтобы воспользоваться новым функционалом
О сайте

Название: сетевое издание «фондимущества.рф»

Учредитель: АО «Фонд Имущества Санкт-Петербурга»

Главный редактор: Голыгина А.В.

Электронная почта: pochta@property-fund.ru

Телефон: +7 (812) 426-11-11

Свидетельство о регистрации: ЭЛ № ФС 77 - 73029

Номер лота 10625
Нежилое помещение в аренду для субъектов малого и среднего предпринимательства в Санкт-Петербурге Извещение о проведении торгов
02 февраля
2022
13:00
среда

Адрес: Санкт-Петербург г, Галерная ул, дом 67, литер А

Район: Адмиралтейский    Василеостровская

Форма проведения:
Аукцион с открытой формой подачи предложений

Место проведения торгов:
Электронная площадка АО «Российский аукционный дом» (раздел «Аренда») - www.lot-online.ru

Организатор торгов:
Комитет имущественных отношений Санкт-Петербурга в лице СПб ГКУ "Имущество Санкт-Петербурга"

Сведения о процедуре
Начальная цена 81 874,88 руб.
Размер задатка 81 874,88 руб.
Шаг аукциона 4 093,74 руб.
Цена продажи 147 374,72 руб.
Определение участников торгов 02.02.2022 10:00
Дата публикации 27.12.21
Тип сделки Аренда
Дата начала приема заявок 28.12.21, 09:00
Дата окончания приема заявок 28.01.22, 10:00
Срок поступления задатка 28.01.22
Дата торгов 02.02.22
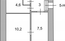
Сведения об объекте
Адрес Санкт-Петербург г, Галерная ул, дом 67, литер А
Помещение 8-Н
Кадастровый номер 78:32:0001007:2634
Функциональное назначение Нежилое
Площадь кв. м 17,9 м2
Этаж расположения 1
Тип входа 1 общий со двора
Элементы благоустройства Есть
Примечания

Продавец: Комитет имущественных отношений Санкт-Петербурга в лице СПб ГКУ “Имущество Санкт-Петербурга”
Начальная цена - величина годовой арендной платы.
Обременения: см. извещение о проведении торгов.Объект расположен в здании, относящемся к числу объектов культурного наследия регионального значения «Дома кн. Л.Д. Вяземского». Обязанность арендатора по присоединению Объекта к электросетям. Самовольная перепланировка.

Еще 5 фото
Адмиралтейская
Нежилое помещение в аренду для субъектов малого и среднего предпринимательства в Санкт-Петербурге Санкт-Петербург г, Галерная ул, дом 25, литер А Показать на карте

Площадь: 121.6м2

Район: Адмиралтейский

Начальная ставка: 417 711,60 руб.

Еще 5 фото
Технологический институт
Объект нежилого фонда (помещение) Санкт-Петербург г, Подольская ул, дом 41, литер Б Показать на карте

Площадь: 26.2м2

Район: Адмиралтейский

Дата торгов: 28.04.26

Начальная цена: 5 197 200 руб.

Еще 12 фото
Садовая, Спасская, Сенная площадь
Нежилое помещение в аренду для субъектов малого и среднего предпринимательства в Санкт-Петербурге Санкт-Петербург г, Казанская ул, дом 33/5, литер А Показать на карте

Площадь: 203.5м2

Район: Адмиралтейский

Еще 3 фото
Технологический институт
Нежилое помещение в аренду для субъектов малого и среднего предпринимательства в Санкт-Петербурге Санкт-Петербург г, Верейская ул, дом 29, литер А Показать на карте

Площадь: 93.3м2

Район: Адмиралтейский

Дата торгов: 29.10.20

Начальная ставка: 680 633,16 руб.

Прямоугольник 2 копия Прямоугольник 2 копия 2 chat chat Прямоугольник, скругл. углы 1 копия 6 profile