Вход
Восстановление пароля
Введите код из SMS
Введите новый пароль
8 (812) 777-27-27

Добавить лот

Чтобы реализовать свою недвижимость на площадке Фонда Имущества, отправьте нам информацию об объекте:

{{smsCtrl.telMsg}}
{{smsCtrl.codeMsg}}
Отправить еще раз
Добавляя лот, вы соглашаетесь с Договором оферты

Авторизация
Авторизируйтесь для добавления объекта и участия в рейтинге

Зарегистрироваться

Оцените по достоинству личный кабинет на сайте Фонда Имущества
Вы можете зарегистрироваться
чтобы воспользоваться новым функционалом
О сайте

Название: сетевое издание «фондимущества.рф»

Учредитель: АО «Фонд Имущества Санкт-Петербурга»

Главный редактор: Голыгина А.В.

Электронная почта: pochta@property-fund.ru

Телефон: +7 (812) 426-11-11

Свидетельство о регистрации: ЭЛ № ФС 77 - 73029

Номер лота 3671
Объект нежилого фонда (помещение) Извещение о проведении торгов
21 января
2026
11:00
среда

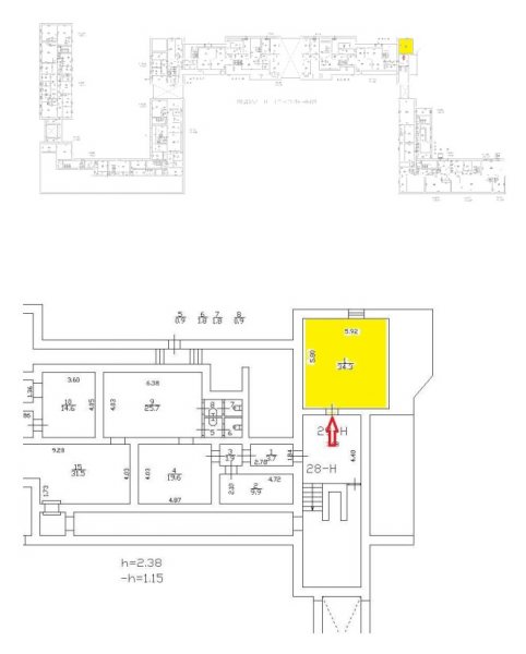
Адрес: Санкт-Петербург г, Суворовский пр-кт, дом 61, литер А

Район: Центральный    Чернышевская

Форма проведения:
Аукцион с открытой формой подачи предложений

Место проведения торгов:
Электронная площадка АО «Российский аукционный дом» (раздел «Приватизация») - www.lot-online.ru

Организатор торгов:
АО «Российский аукционный дом»

Сведения о процедуре
Начальная цена 3 360 000 руб.
Размер задатка 336 000 руб.
Шаг аукциона 168 000 руб.
Определение участников торгов 19.01.2026 15:00
Тип сделки Продажа
Тип торгов Электронные
Дата начала приема заявок 09.12.25, 10:00
Дата окончания приема заявок 13.01.26, 23:00
Срок поступления задатка 13.01.26
Дата торгов 21.01.26
Сведения об объекте
Адрес Санкт-Петербург г, Суворовский пр-кт, дом 61, литер А
Помещение 29-Н
Кадастровый номер 78:31:0001120:2530
Функциональное назначение Универсальное
Площадь кв. м 34,3 м2
Этаж расположения цоколь
Тип входа 1 общий с улицы
Элементы благоустройства Есть
Еще 4 фото
Обводный канал
Объект нежилого фонда (помещение) Санкт-Петербург г, Лиговский пр-кт, дом 126, литер А Показать на карте

Площадь: 10.7м2

Район: Центральный

Дата торгов: 22.12.25

Начальная цена: 2 016 000 руб.

Еще 13 фото
Лиговский проспект
Объект нежилого фонда (помещение) Санкт-Петербург г, Константина Заслонова ул, дом 17, литер А Показать на карте

Площадь: 76.4м2

Район: Центральный

Дата торгов: 21.01.26

Начальная цена: 7 668 000 руб.

Еще 7 фото
Площадь Восстания
Объект нежилого фонда (помещение) Санкт-Петербург г, Конная ул, дом 5/3, литер В Показать на карте

Площадь: 37.7м2

Район: Центральный

Дата торгов: 19.03.24

Начальная цена: 4 200 000 руб.

Еще 9 фото
Площадь Восстания
Объект нежилого фонда (помещение) Санкт-Петербург г, Гончарная ул, дом 16, литер А Показать на карте

Площадь: 223.4м2

Район: Центральный

Начальная цена: 22 752 000 руб.

Прямоугольник 2 копия Прямоугольник 2 копия 2 chat chat Прямоугольник, скругл. углы 1 копия 6 profile