Вход
Восстановление пароля
Введите код из SMS
Введите новый пароль
8 (812) 777-27-27

Добавить лот

Чтобы реализовать свою недвижимость на площадке Фонда Имущества, отправьте нам информацию об объекте:

{{smsCtrl.telMsg}}
{{smsCtrl.codeMsg}}
Отправить еще раз
Добавляя лот, вы соглашаетесь с Договором оферты

Авторизация
Авторизируйтесь для добавления объекта и участия в рейтинге

Зарегистрироваться

Оцените по достоинству личный кабинет на сайте Фонда Имущества
Вы можете зарегистрироваться
чтобы воспользоваться новым функционалом
О сайте

Название: сетевое издание «фондимущества.рф»

Учредитель: АО «Фонд Имущества Санкт-Петербурга»

Главный редактор: Голыгина А.В.

Электронная почта: pochta@property-fund.ru

Телефон: +7 (812) 426-11-11

Свидетельство о регистрации: ЭЛ № ФС 77 - 73029

Номер лота 834
Продажа права аренды государственной собственности Санкт-Петербурга Извещение о проведении торгов
10 апреля
2019
10:00
среда

Адрес: Санкт-Петербург г, Колпино г, Павловская ул, дом 19/13

Район: Колпинский    Купчино

Форма проведения:
Аукцион с открытой формой подачи предложений

Место проведения торгов:
Санкт-Петербург, пер. Гривцова, д.5, Большой аукционный зал Фонда имущества Санкт-Петербурга.

Сведения о процедуре
Начальная цена 288 899,35 руб.
Размер задатка 72 224 руб.
Шаг аукциона 14 444 руб.
Цена продажи 462 226,37 руб.
Определение участников торгов 09.04.2019 10:00
Дата публикации 27.02.19
Тип сделки Аренда
Дата начала приема заявок 27.02.19, 10:00
Дата окончания приема заявок 05.04.19, 16:00
Срок поступления задатка 05.04.19
Дата торгов 10.04.19
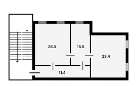
Сведения об объекте
Адрес Санкт-Петербург г, Колпино г, Павловская ул, дом 19/13
Помещение
Кадастровый номер 78:37:10017106:2441
Функциональное назначение Офисное
Площадь кв. м 75,6 м2
Этаж расположения 1
Тип входа 1 отдельный со двора
Элементы благоустройства Есть
Еще 8 фото
Нежилое помещение в аренду для субъектов малого и среднего предпринимательства в Санкт-Петербурге Санкт-Петербург г, Колпино г, Советский б-р, дом 7, корпус 1, литер А Показать на карте

Площадь: 76.6м2

Район: Колпинский

Дата торгов: 26.11.25

Начальная ставка: 246 990,36 руб.

Еще 14 фото
Гостиный Двор
Нежилое помещение в аренду для субъектов малого и среднего предпринимательства в Санкт-Петербурге Санкт-Петербург г, Большая Конюшенная ул, дом 2, литер А Показать на карте

Площадь: 219.5м2

Район: Центральный

Дата торгов: 12.11.25

Начальная ставка: 842 027,92 руб.

Еще 9 фото
Чернышевская
Нежилое помещение в аренду для субъектов малого и среднего предпринимательства в Санкт-Петербурге Санкт-Петербург г, Пестеля ул, дом 11, литер А Показать на карте

Площадь: 86.6м2

Район: Центральный

Дата торгов: 29.10.25

Начальная ставка: 535 851,48 руб.

Еще 6 фото
Новочеркасская
Нежилое помещение в аренду для субъектов малого и среднего предпринимательства в Санкт-Петербурге Санкт-Петербург г, Большая Пороховская ул, дом 25, литер А Показать на карте

Площадь: 149.7м2

Район: Красногвардейский

Начальная ставка: 396 906,84 руб.

Прямоугольник 2 копия Прямоугольник 2 копия 2 chat chat Прямоугольник, скругл. углы 1 копия 6 profile